Project Name / Type: New-build Hotel 
Site Area: 2,001 m² 
Usable Floor Area: 1,033 m² 
Scope of Work: Concept Design 
Project Date: 2024 
Architect / Team: arch. Joanna Szybejko

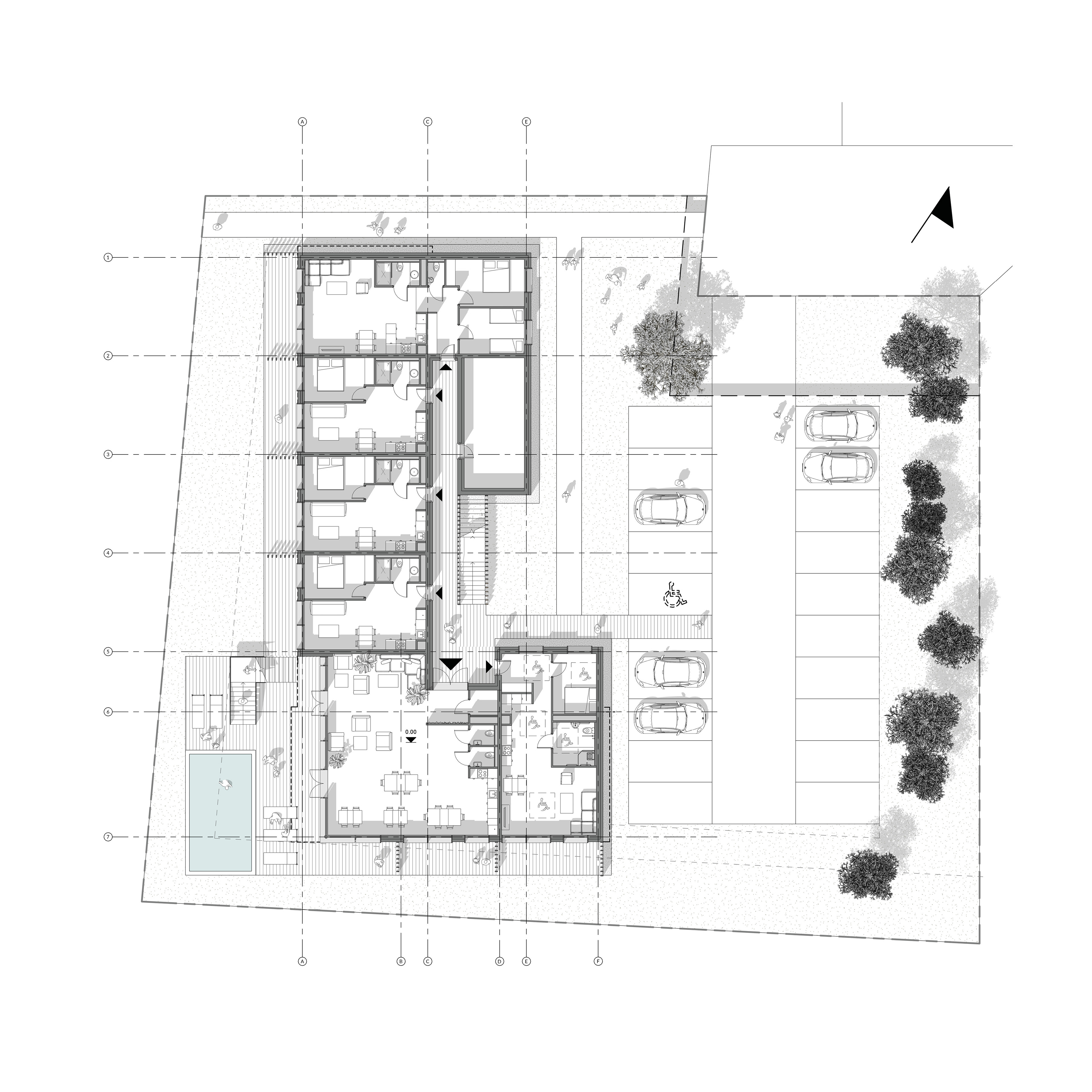
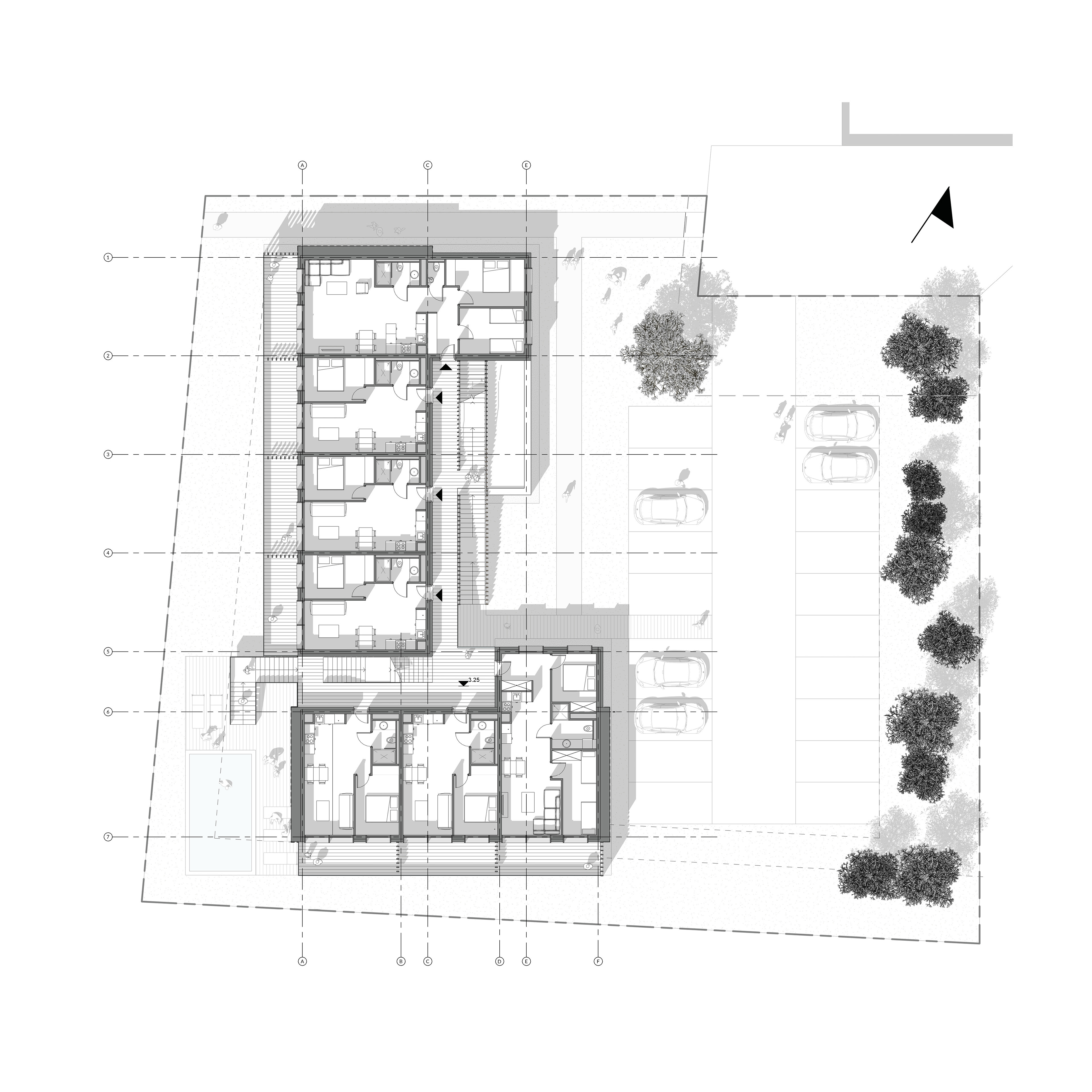
The proposal envisages the creation of a functional hotel facility. The site strategy allocates the northern aspect to vehicular parking, whilst the southern zone is fully dedicated to recreational amenity, featuring a swimming pool and terraced landscaping. Priority has been placed on maximising the number of apartments with good natural light, providing attractive recreational amenities, and ensuring an optimal separation of the site's functional zones.
The development is articulated as two distinct building volumes, comprising a total of 19 apartment units:
15 no. units at approx. 45 m²
2 no. units at approx. 60 m²
2 no. units at approx. 70 m²

Every apartment features a private terrace or balcony. Additionally, a communal terrace with a swimming pool is provided for the use of residents. The building’s programme is complemented by plant rooms and communal zones.

You may also like